loading
YQG bridge type slag scraper (mud scraper) machine
普利斯
| Availability: | |
|---|---|
1. Purpose
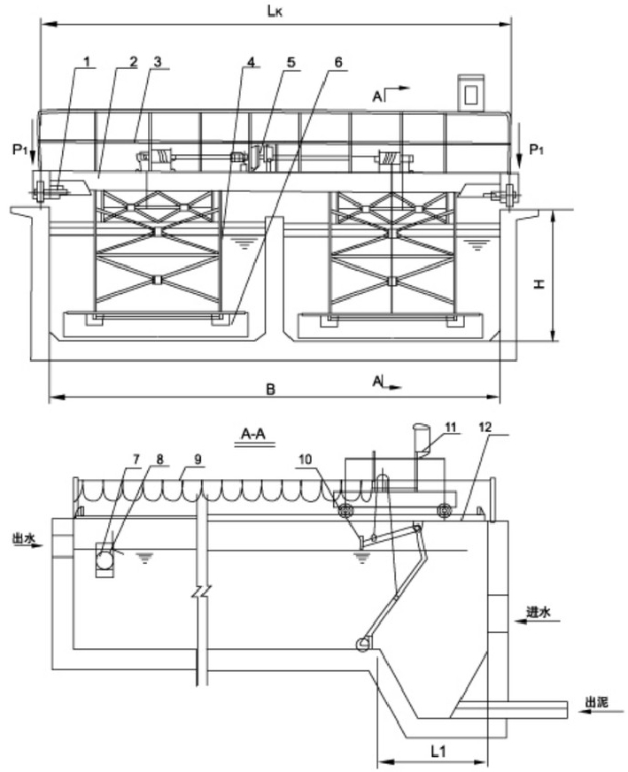
The YQG bridge-type slag scraper (sludge scraper) is mainly used for sludge discharge from advection sedimentation tanks in urban sewage treatment plants and water plants. This machine is a one-way sludge scraper. According to user requirements, a skimming and skimming device can be added.
2. Structure and working principle
The equipment adopts a movable bridge type. When the scraper is not working, it stops at the water inlet end. When the scraper is working and traveling along the water flow, the skimmer is first lowered to skim the scum on the pool surface to the steel slag removal tank at the end of the pool, and the scraper is lifted away from the bottom of the pool. When traveling in the opposite direction, the scraper is lowered to scrape the sludge at the bottom of the pool to the sludge collection tank at the end of the pool. The skimming plate is lifted up and away from the liquid surface to prevent the scum from moving backwards; it makes a reciprocating motion accordingly to achieve the purpose of scraping mud and skimming.
3. Main technical parameters and installation dimensions table
model parameter | YQG-5 | YQG-6 | YQG-8 | YQG-10 | YQG-12 | YQG-15 | YQG-20 | |
Pool width B(m) | 5 | 6 | 8 | 10 | 12 | 15 | 20 | |
Track gauge LK (m) | B+0.4 | |||||||
Pool depth H(m) | 3.0~5.0 | |||||||
Pool length L(m) | According to user requirements | |||||||
Travel speed V(m/min) | 1.5~2.0 | |||||||
Traveling motor power N₁(KW) | 0.25×2 | 0.37×2 | 0.55×2 | |||||
Rake motor power Nz (KW) | 0.37~0.75 | |||||||
Steel wheel diameter d(mm) | 250 | |||||||
Rail specifications (kg/m) | 15(GB/T11246-1989) | |||||||
Installation dimensions (mm) | B1 | 1500 | 2200 | 2900 | ||||
L1 | According to user requirements | |||||||
Wheel pressure P₁(KN) | 15 | 22 | 30 | |||||
Steel wheel horizontal load P2 (KN) | 6 | 8 | 10 | |||||
4. Work characteristics
■Double-sided drive, the roller transmission on both sides is synchronized, and the operation is smooth;
■The water vehicle uses steel wheels to travel, and the underwater scraper uses rubber rollers to travel;
■Removing slag and scraping mud work in opposite directions;
■Easy to operate, you can directly control the operation of the equipment locally/remotely.
5. Appearance and installation dimensions diagram


content is empty!