loading
LF type chain plate rotary grille decontamination machine
普利斯
| Availability: | |
|---|---|
1. Purpose
LF type chain plate rotary grille decontamination machine (referred to as rotary grille decontamination machine) is suitable for rainwater, sewage stations, water supply lifting pump stations and inlet pump rooms of sewage treatment plants in urban sewage treatment. It is used to intercept and remove floating debris. It is a decontamination equipment with a wide range of applications.
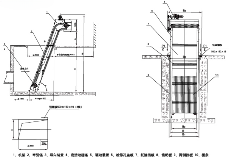
2. Structure and working principle
The equipment adopts a chain plate rotary type and consists of fixed gratings to pass through the water grate. When the sewage flows through, the debris larger than the grating gap is intercepted. The rake teeth of the rake plate penetrate into the gap of the grate. When the driving device drives the traction chain to rotate, the rake teeth bring the debris trapped on the grating surface from bottom to top to the slag outlet. The debris falls off by gravity and falls from the discharge port into a conveyor or garbage trolley, and then is transported or further processed.
3. Model description

4. Main technical parameters and installation dimensions table

5. Main features
■ The driving device adopts cycloidal pinwheel or helical gear reduction motor through transmission chain or drive. It has the characteristics of low noise, compact structure and smooth operation:
■ The tooth plate is processed by gold, with high precision and beautiful appearance. The distance between the two tooth plates is 2.0-2.5m, and a support is added in the middle to effectively remove larger debris;
■ The rack is an integral frame structure with strong rigidity, easy installation and less daily maintenance work;
■ The equipment is easy to operate and the operation of the equipment can be controlled locally/remotely;
■ To prevent accidental overload, it is equipped with double protection of mechanical shear pin and overcurrent, making the equipment operation safe and reliable.
6. Water flow meter

7. Appearance and installation dimensions diagram

content is empty!